招商在线> 厂房> 湖北厂房> 宜昌厂房> 西陵厂房> 联东U谷 · 宜昌西陵智能制造港
联东U谷 · 宜昌西陵智能制造港
基础信息
租金
5.2元/㎡·天
建筑面积
30万㎡
厂房结构
框架结构
厂房层数
7层
厂房性质
暂无数据
首层高度
7.2米
新旧程度
暂无数据
消防等级
暂无数据
厂房简介
开发商:北京联东投资(集团)有限公司
开发商简介:联东集团创建于1991年,专注于产业服务和园区运营,已经发展成为具有全国影响力的产业集团。旗下核心企业联东U谷,目前在全国90座城市,投资运营产业园区超过526个,引进、服务新兴制造业和科技型企业超过21000家。联东U谷连续14年获得国务院发展研究中心企业研究所、中指研究院等机构颁发的“中国产业园区运营优秀企业”和“中国产业园区运营商优秀品牌”荣誉,成为行业领军品牌。
宜昌西陵区核心区域, 城市核心 产城融合 产业聚集。
项目简介:现房在售,项目位于西陵核心区域,50年产权,可办证可按揭,首付两成起。 交通便利,距离峡州大道200米,距离三峡高速出入口800米,周边吾悦广场、夷陵万达、宜昌市二十五中、三峡大学教育等配套齐全。
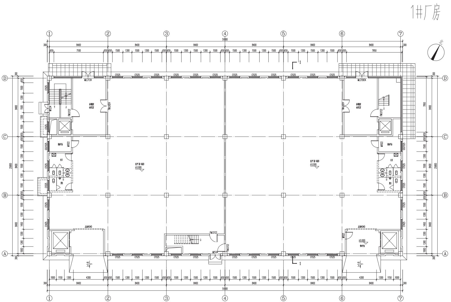
产品数据: 7层分层产品(大平层) 电梯配置情况:1户2梯(客货梯分流) 面积:650-7900㎡; 层高:首层7.2米,标准层4.5米,顶层4.5米; 承重:首层:20KN/㎡,标准层:5KN/㎡ ,顶层:5KN/㎡; 户型图:(1号楼1楼)
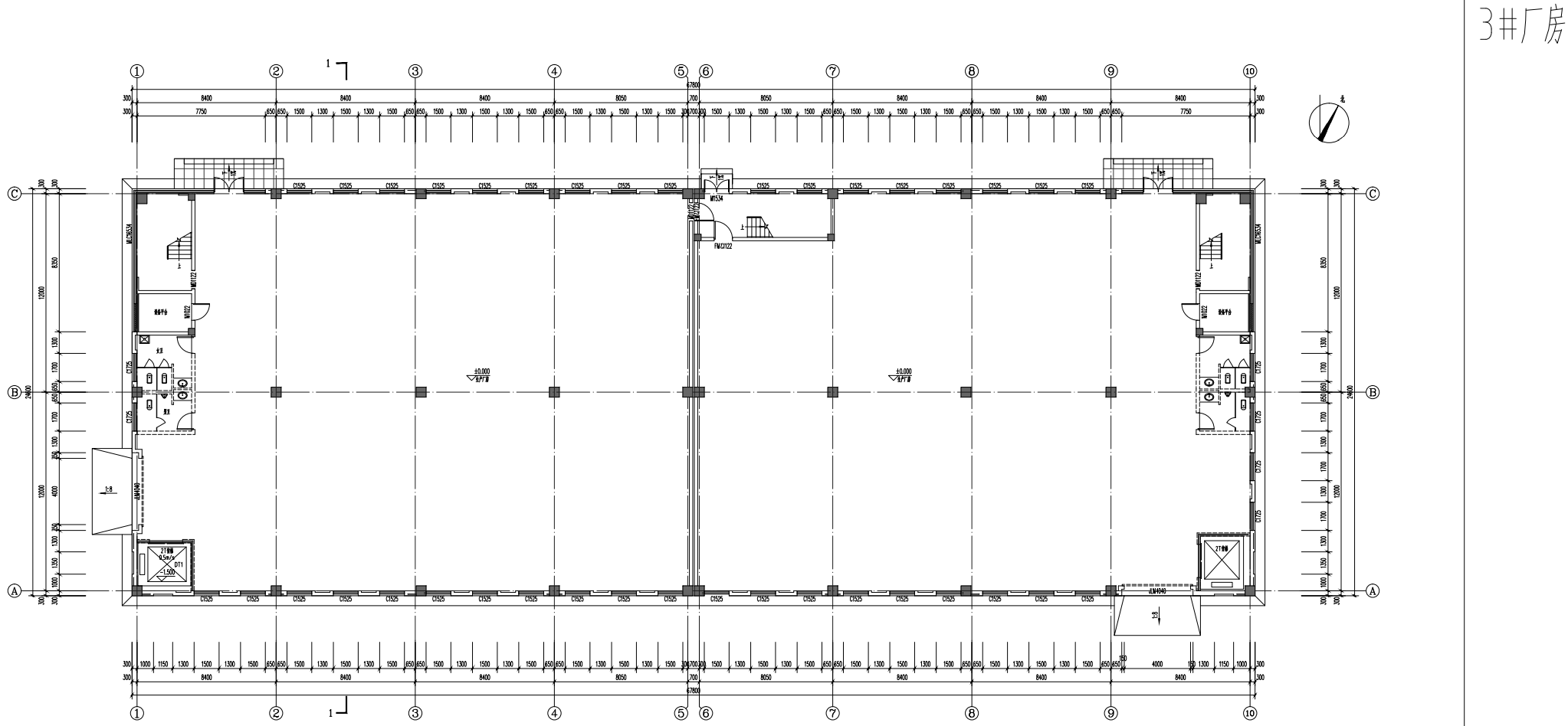
3.5层分栋产品(独栋别墅) 电梯配置情况:预留电梯口,企业根据诉求安装。 面积:1450-5832㎡; 层高:首层7.2米,标准层4.2米,顶楼3.9米 首层8.1米,标准层4.5米,顶楼4.2米 承重:首层:20KN/㎡,标准层:8KN/㎡;,顶层:3.5KN/㎡; 户型图:(3号楼1楼)

项目核心优势: 所在区域:宜昌核心区域宜昌西陵经济开发区内,西陵经济开发区享受开发区政策。 位置交通:毗邻峡州大道,距离三峡高速夜明珠出入口仅800米,出行交通方便,高价值地段。 与市中心关系: 距离西陵区政府9.1公里,开车13分钟可到。 距离三峡高速入口直线距离800米。 距宜昌东站15公里,15分钟。 距离三峡机场32公里,30分钟。 距离宜昌西陵区政府9.1公里,12分钟。
产发经理:杨惠婷 18672098828(微信同号)
厂房图册




